仲介手〇料不要 大英産業東区京塚町2号地【帯山小・帯山中】

3,799万円

熊本県熊本市東区京塚本町20-30

熊本市電A系統「神水交差点」駅徒歩21分

熊本市電A系統「商業高校前」駅徒歩25分

価格
3,799万円
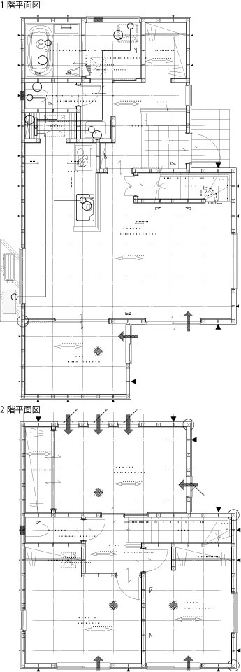
間取り/建物面積
4LDK/101.64㎡
所在地
熊本県熊本市東区京塚本町20-30
築年
2026年3月(新築)
駐車
-
交通

熊本市電A系統神水交差点」駅 徒歩21分

熊本市電A系統商業高校前」駅 徒歩25分

仲介手〇料不要 大英産業東区京塚町2号地【帯山小・帯山中】の基本情報

物件名
仲介手〇料不要 大英産業東区京塚町2号地【帯山小・帯山中】
価格
3,799万円
建物面積
101.64㎡
土地面積
43.25坪(142.98㎡)
築年月
2026年3月(新築)
総戸数
-
所在地
熊本県熊本市東区京塚本町20-30
交通

熊本市電A系統神水交差点」駅 徒歩21分

熊本市電A系統商業高校前」駅 徒歩25分

仲介手〇料不要 大英産業東区京塚町2号地【帯山小・帯山中】の詳細情報

設備条件
設備(その他)
    -
駐車場/月額
-/-
土地権利
所有権
国土法届出
不要
用途地域
第一種中高層住居専用
取引態様
一般媒介
引渡し
相談
備考
徒歩11分の場所に熊本市立帯山小学校があります。内外装共に綺麗な新築戸建ての物件はいかがでしょうか。築2年以内の物件ですので、外観もキレイです。熊本市電A系統神水交差点近くにある戸建て情報で、何かご質問などございましたら0120-83-7789からお聞き下さい。九州トータルハウジングが、丁寧にお答え致します。

仲介手〇料不要 大英産業東区京塚町2号地【帯山小・帯山中】のコメント(おすすめポイント)

徒歩11分の場所に熊本市立帯山小学校があります。築2年以内の築浅物件です。綺麗で清潔感のある室内が新築戸建ての特徴です。一戸建てについてのお問合せ、又は内覧をご希望の際は九州トータルハウジングまでご連絡下さい。お問い合わせは0120-83-7789までよろしくお願いします。

仲介手〇料不要 大英産業東区京塚町2号地【帯山小・帯山中】で募集中の物件

  1. 2号地

    30.74坪 (101.64㎡)

    3,799万円(123.58万円/坪)

周辺施設

  • ぎんなん保育園の画像

    保育園

    ぎんなん保育園

    332m(5分)

  • 九州音楽京塚幼稚園の画像

    幼稚園

    九州音楽京塚幼稚園

    502m(7分)

  • 熊本県立熊本工業高校の画像

    高校

    熊本県立熊本工業高校

    613m(8分)

  • 熊本市立尾ノ上小学校の画像

    小学校

    熊本市立尾ノ上小学校

    747m(10分)

  • 熊本市立帯山中学校の画像

    中学校

    熊本市立帯山中学校

    769m(10分)

  • 熊本市立帯山小学校の画像

    小学校

    熊本市立帯山小学校

    839m(11分)

  • MARUEI(マルエイ) 尾ノ上店の画像

    スーパー

    MARUEI(マルエイ) 尾ノ上店

    843m(11分)

  • 錦ケ丘公園の画像

    公園

    錦ケ丘公園

    1111m(14分)

  • 京塚保育園の画像

    保育園

    京塚保育園

    1145m(15分)

  • 熊本市立帯山西小学校の画像

    小学校

    熊本市立帯山西小学校

    1182m(15分)

近隣の物件

  1. 熊本市東区水源2丁目

    4SLDK (93.96㎡)

    2,980万円

  2. 熊本市東区桜木5丁目

    3LDK (100.90㎡)

    3,280万円

  3. 熊本市東区東本町

    4LDK (97.68㎡)

    3,998万円

  4. 熊本市東区桜木6丁目

    4LDK (105.12㎡)

    3,998万円

よく見られている物件

  1. 熊本市西区池田2丁目

    4LDK (84.05㎡)

    2,398万円

  2. 菊池市出田

    5LDK (140.85㎡)

    1,790万円

  3. 熊本市北区龍田2丁目

    4LDK (135.63㎡)

    4,280万円

  4. 合志市竹迫

    4LDK (110.13㎡)

    2,598万円

仲介手〇料不要 大英産業東区京塚町2号地【帯山小・帯山中】

お気軽にお問い合わせください

LINEからお問い合わせ 無料お問い合わせ

株式会社 九州トータルハウジング

0120-83-7789

09:30-18:00

(休:祝日、お盆、年末年始)