仲介手〇料不要 ブルーミングガーデン合志市須屋17期【西合志東小・西合志南中】

3,380万円~3,390万円

熊本県合志市須屋1627-9

熊本電気鉄道「三ツ石」駅徒歩15分

熊本電気鉄道「黒石」駅徒歩18分

熊本電気鉄道「須屋」駅徒歩19分

価格
3,380万円~3,390万円
間取り/建物面積
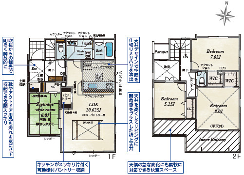
4LDK/116.34㎡~119.29㎡
所在地
熊本県合志市須屋1627-9
築年
2026年2月(新築)
駐車
有(3台)
交通

熊本電気鉄道三ツ石」駅 徒歩15分

熊本電気鉄道黒石」駅 徒歩18分

熊本電気鉄道須屋」駅 徒歩19分

仲介手〇料不要 ブルーミングガーデン合志市須屋17期【西合志東小・西合志南中】の基本情報

物件名
仲介手〇料不要 ブルーミングガーデン合志市須屋17期【西合志東小・西合志南中】
価格
3,380万円~3,390万円
建物面積
116.34㎡~119.29㎡
土地面積
56.98坪~57.18坪(188.37㎡~189.03㎡)
築年月
2026年2月(新築)
総戸数
-
所在地
熊本県合志市須屋1627-9
交通

熊本電気鉄道三ツ石」駅 徒歩15分

熊本電気鉄道黒石」駅 徒歩18分

熊本電気鉄道須屋」駅 徒歩19分

仲介手〇料不要 ブルーミングガーデン合志市須屋17期【西合志東小・西合志南中】の詳細情報

設備条件
  • 閑静な住宅地
  • 建設住宅性能評価書付
  • 駐車3台可
  • 耐震構造
  • 宅配ボックス
設備(その他)
    -
駐車場/月額
有(3台)/0円
土地権利
所有権
国土法届出
不要
用途地域
第一種低層住居専用
取引態様
一般媒介
引渡し
即時
備考
徒歩16分の場所に合志市立西合志東小学校があります。折上天井の物件なら、圧迫感の無い空間を演出する事が出来ます。室内環境を左右する基礎も、ベタ基礎となっているので安心です。制震で構造がしっかりしてて、建物重量を支えも頑丈です。九州トータルハウジングでは、合志市にある豊富な不動産情報をご用意しておりますので、0120-83-7789からご希望をお伝え下さい。

仲介手〇料不要 ブルーミングガーデン合志市須屋17期【西合志東小・西合志南中】のコメント(おすすめポイント)

駅徒歩15分の場所にある物件です。地盤が弱いと大惨事になりかねませんので地盤調査はとても大切です。制震で構造がしっかりしてて、建物重量を支えも頑丈です。友人を招きたくなる魅力的なデザイナーズ物件です。九州トータルハウジングへのご連絡は、TEL【0120-83-7789】から承っております。気になる点などがございましたら、お気軽にご質問ください。

仲介手〇料不要 ブルーミングガーデン合志市須屋17期【西合志東小・西合志南中】で募集中の物件

  1. 1号棟

    35.19坪 (116.34㎡)

    3,380万円(96.05万円/坪)

  2. 2号棟

    36.08坪 (119.29㎡)

    3,390万円(93.96万円/坪)

周辺施設

  • 合志市立西合志南中学校の画像

    中学校

    合志市立西合志南中学校

    1088m(14分)

  • 合志市立西合志東小学校の画像

    小学校

    合志市立西合志東小学校

    1216m(16分)

近隣の物件

  1. 合志市幾久富

    4LDK (106.57㎡)

    4,199万円

  2. 合志市幾久富

    4LDK (101.02㎡)

    4,499万円

  3. 合志市幾久富

    4LDK (110.08㎡)

    4,299万円

  4. 合志市幾久富

    4LDK (110.95㎡)

    3,799万円

仲介手〇料不要 ブルーミングガーデン合志市須屋17期【西合志東小・西合志南中】

お気軽にお問い合わせください

LINEからお問い合わせ 無料お問い合わせ

株式会社 九州トータルハウジング

0120-83-7789

09:30-18:00

(休:祝日、お盆、年末年始)